地面钢结构主要有立柱、梁、刚平台立柱、护栏,施工过程正常顺序是立柱,再安装横梁、平台、护栏,施工紧急情况下可以分区域施工,按区域穿插施工。地面钢结构施工任务顺序:
1、 钢结构立柱安装;
2、 钢结构横梁安装;
3、 钢结构纵梁安装;
4、 钢结构平台安装;
5、 钢结构楼梯、护栏安装;
钢结构安装施工工艺如下:
一、设备放线
无论安装什么设备,第一步的工作都是放线,放线的误差对后期安装有很大的影响,误差控制的越小,设备安装越接近图纸尺寸。放线是设备安装过程中最重要的一步。
1、 找基准点
安装图纸上必需有安装基准,按照图纸所示基准找出安装设备基准点。基准点是设备安装的起始点,是设备按图施工的第一步,确定好设备起始位置,才能进行设备的放线工作。例如:如图(1-1)所示:立柱基准横向中心距V1柱460mm,纵向与V1柱在一条中心线上,以此确定设备基准。
2、 放垂线方法
设备安装过程中,现场画垂线经常用到,短距离的一般使用直角尺或按图(1-2)用分规就能做到,长距离的使用直角尺就不精确了。如图(1-2)所示:在基准点上向两侧截取两段相等的距离,已截取距离的终点为圆心,用卷尺或软线已圆弧半径R≥1.5L(R值越大,求出垂线越准)向所求垂线一侧分别画圆弧,圆弧交点与基准点连接,即为基准线的垂直线。
利用勾股定理做垂线方法:如图(1-2)所示:勾3、股4、玄5组成的三角形,勾股边夹角为直角,首先选点基准点,在基准线上量取L= 3000mm的勾长,以基准点为圆心半径为4000mm向所求垂线一侧画圆弧,以3000mm的另一点为圆心半径为5000mm向所求垂线一侧画圆弧,圆弧交点与基准点连接,即为基准线的垂直线。
3、放平行线方法
设备安装过程中,设备基准一般都是与厂房立柱或其他设备平行,单个钢结构立柱之间也有平行和垂直的关系,现场安装平行线也经常用到。如图(1-3)所示:先按照画垂线的方法求出垂线,在垂线上画出两排立柱的中心距,两点之间的连接线延长,即为所求平行线。
现场所做的垂直线与平行线可用之间对角线进行检测,如图(1-3)所示:设a为 基准点,首先检查ad、bc之间距离是否相等,基准线是否与基准平行,若相等量取bd、ac两点对角线e、f。若e>f说明:b、c其中一点或两点同时向右偏,所求垂线向右偏。若e<f说明:b、c其中一点或两点同时向左偏,所求垂线向左偏。若e=f说明:所求垂线与平行线均正确。
二、地面钢结构安装
1、 钢结构立柱安装
钢结构立柱按标高调节方式可分为:可调节式和不可调节式(如图2-1所示),可调节式用于地面基础在可控制范围,立柱的调节量可满足补偿地面误差,钢平台水平精度要求较高的场合,可调节式可节约现场安装时间,立柱可安装前按图纸预制完成。不可调节式用于地面基础标高不可控,不可调节本身高度,钢结构水平精度要求不高的场合,不可调节式需在现场测量后预制,现场安装时间加长。
1-1 、可调节式立柱安装方法
可调节式立柱可以先安装底座,后将立柱安装在底座上,利用高度调节螺栓再对立柱标高、垂直度进行调整满焊。安装方法如下:
①、在安装地面上按施工图将立柱位置中心线画出,将立柱底座放于中心交叉线上,底座中心与放线中心对齐,通过底座螺栓孔向地面画定位标记,按照地面固定螺栓长度、直径选用相应冲击钻头,对准地面标记向下垂直钻眼,清理螺栓孔,放入螺栓,安装立柱底座固定。
②、如图(2-1-1)所示:立柱安装时先把调节螺栓装入立柱底部,用叉车或其它起吊设备,利用钢丝绳从顶部吊起,立柱底部从立柱底座侧边滑入或从底座上方直接插入,穿上紧固螺栓并装上平垫、弹垫、螺帽,松看吊装绳,对立柱垂直度、标高进行调整。
③、立柱垂直度调整方法:立柱垂直度调整,需调节前后、左右两个方向的垂直度,一般采用磁力铅锤或水平尺来调整。
水平尺调整垂直度:水平尺上一般有三个玻璃管,横向玻璃管用来测量水平面的,竖向玻璃管用来测量垂直面的,另外一个一般是用来测量45度角的,三个水泡的作用都是测量测量面是否水平之用,水泡居中则水平,水泡偏离中心,则平面不是水平的。水平尺侧垂直时,与北侧立柱平行放置,如果被测立柱偏离垂直,那么水平尺的水泡向偏离相反得方向偏离,通过调节立柱偏离方向一侧的底部调节螺栓顶起或相反方向的调节螺栓向上升来实现,同样的方法调整另外一侧。因为水平尺存在玻璃管读数误差和本身的误差太大,很少使用这种方法。
磁力铅锤调整垂直度:如图(2-1-2)所示:利用铅锤的自由垂直性能,通过立柱与铅垂线的上、下距离来调节垂直度。先将铅锤吸在立柱一侧(一般高度距离地面两米以上),重锤下拉保证底部无障碍物,等到重锤静止后,量取上端立柱距铅垂线之间的距离(量具于立柱垂直),设读数为6mm,再量取下端的距离,若量取数值小于6mm,说明立柱向左偏离,通过调节立柱左侧的底部调节螺栓顶起或右侧的调节螺栓向上升来实现,若量取数值大于6mm,说明立柱向右偏离,通过调节立柱右侧的底部调节螺栓顶起或左侧的调节螺栓向上升来实现。

④、立柱标高调整方法:立柱标高的调整一般使用水准仪抄水平,是引基准标高(0米点)到需安装设备基准点,推算出落差在加上立柱长度就等于立柱设计标高。
打标高需要用的设备主要为水准仪,水准仪的使用方法及怎样从设计基准标高值引到安装立柱上,实现立柱实际标高值,使用工作方法具体如下:
水准仪的使用步骤包括:水准仪的安置、粗平、瞄准、精平、读数五个步骤。安置是将仪器安装在可以伸缩的三脚架上并置于两观测点之间。首先打开三脚架并使高度适中,用目估法使架头大致水平并检查脚架是否牢固,然后打开仪器箱,用连接螺旋将水准仪器连接在三脚架上。
粗平是使仪器的视线粗略水平,利用脚螺旋置园水准气泡居于园指标圈之中。具体方法用仪器练习。
瞄准是用望远镜准确地瞄准目标。首先是把望远镜对向远处明亮的背景,转动目镜调焦螺旋,使十字线最清晰。再松开固定螺旋,旋转望远镜,使照门和准星的连接对准水准尺,拧紧固定螺旋。最后转动物镜对光螺旋,使水准尺的清晰地落在十字线平面上,再转动微动螺旋,使水准尺的像靠于十字竖线的一侧。
精平是使望远镜的视线精确水平。微倾水准仪,在水准管上部装有一组棱镜,可将水准管气泡两端,折射到镜管旁的符合水准观察窗内,若气泡居中时,说明视线水平。若气泡两端的象不居中,说明视线不水平。这时可用手转动微倾螺旋使气泡两端的象完全居中。
读数是用十字线,截读水准尺上的读数。现在的水准仪有倒象望远镜,读数时应由上而下进行。先估读毫米级读数,后报出全部读数。
注意,水准仪使用步骤一定要按上面顺序进行,不能颠倒,特别是读数前的符合水泡调整,一定要在读数前进行。
水准仪构造图如下图:
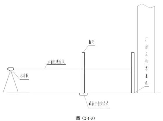
安装立柱标高值调整,要先从设计零米基准引到安装立柱,步骤如图(2-1-3)所示:安放好水准仪,标尺放于厂房立柱零米点,读取标尺数值,设读取设置为1200,再将标尺放于设备立柱安装点,读取标尺数值,设读取数值为1180,那么设备立柱安装点比厂房立柱零米点低20mm,即标高落差为-20mm。设立柱设计标高为4200mm,那么立柱的实际调整到的长度为4200 —(-20)=4220mm,将立柱安装点得立柱高度调整到顶部距地面为4220mm 。
还有一种方法是:设安装立柱标高为4200mm、设立柱顶板厚度为16mm,可以从厂房立柱零米点向上返4200mm,画一道线,是标尺垂直倒置,使标尺顶部与划线平齐,用水准仪读取数值设为3000,然后将标尺顶部再顶住安装立柱顶板底部,并垂直放置,那么要想安装立柱标高为4200mm,水准仪的读数应为3000 — 16 =2984,若读取数值小于2984,则说明立柱低于标准高度4200mm,需把立柱向上调整,反之,需把立柱向下调整。
即可将此立柱作为后面安装立柱的基准。
可调节式立柱标高,设计时应在地面可控或实测地面标高按调节范围区域划分好,所以立柱标高均可通过调节螺栓来实现设计标高,先按上述方法安装好基准立柱,立柱标高调整方法如图(2-1-4)所示:标尺倒置垂直顶住立柱顶板底部,先测出基准立柱的标高值,基准立柱的标高值2500,然后测出需调整立柱的实际标高值,若实际标高值小于2500,则说明需调整立柱低于基准立柱,需把立柱向上调整,反之,需把立柱向下调整。
立柱垂直度、标高调整完后,经过检验方可对立柱底座与柱体之间进行满焊。
可调节式立柱安装必须先调整垂直度后调整标高,或者垂直度、标高同时调整。
注意:水准仪每换一个位置基准立柱必须重新读数,因为水准仪位置更换,水准仪水平需重新调整,测出标高值与原先位置肯定不一样。
1-2、不可调节式立柱安装方法
不可调节式立柱安装可先将地面立柱安装位置得相对标高测出,计算出相对零米落差,按照落差值推出立柱实际需要长度,按实际长度预制立柱,制作完成后进行安装、调整立柱垂直度。立柱标高要求相对精确的,可先按图安装立柱底板,将底板安装固定水平调节完成后,抄立柱地板的水平落差,计算出立柱需要的长度,再进行立柱预制、顶板焊接并安装调整垂直度后再焊接底板、加强筋。
立柱预制完成安装方法:立柱预制之前先按上述方法测出立柱安装位置落差,设落差值分别为:10、—5、15、—10,立柱设计标高为3800mm,那么立即预制实际尺寸非别为:3800 — 10、3800 — (—5)、3800 — 15、3800 — (—10),等于3790、3805、3785、3810,按照实际立柱长度进行预制完成,
做一块立柱底板的标准模板,保证边缘尺寸和固定孔孔距,利用标准模板在安装地面上按施工图将立柱位置中心线画出,将标准模板放于中心交叉线上,标准模板中心与放线中心对齐,通过底座螺栓孔向地面画定位标记,按照地面固定螺栓长度、直径选用相应冲击钻头,对准地面标记向下垂直钻眼,清理螺栓孔,放入螺栓并预紧,将预制好的立柱对应尺寸安装在相应的点上,如图(2-1-5)左图所示:用起吊设备将需安装立柱吊起,运到安装点上方,对准螺孔放下立柱,装上平垫、弹垫并拧上螺母,松开起吊设备,然后对立柱垂直度进行调整,按照上述可调节式立柱的垂直度检测方法进行垂直度检查,如图(2-1-5)右图所示:若检查立柱向左偏离,则用力将立柱向右推,在左侧立柱底板下方垫垫板,使立柱向右,反之则用力将立柱向左推,在右侧立柱底板下方垫垫板,使立柱向左。
要求精度相对较高的立柱,先在立柱安装的立柱底板用上述方法安装好,用水平尺检查安装后底板的水平度,水平尺基准面平放于立柱底板上,检查前后、左右的水平情况,看水平尺的横向玻璃管中的气泡,若气泡向左偏离,则说明立柱底板左高右低,在右侧立柱底板下方垫垫板,使立柱底板右侧提升,反之说明立柱底板左低右高,在左侧立柱底板下方垫垫板,使立柱底板左侧提升。地板安装完成后测出立柱底板相对零米点落差,设落差值分别为:10、—5、15、—10,立柱设计标高为3800mm,立柱底板厚度为20mm,那么立柱预制实际尺寸就需要减去底板的尺寸,尺寸分别为3800 — 10 — 20、3800 — (—5)— 20、3800 — 15 — 20、3800 — (—10)— 20,等于3770、3785、3765、3790,为方便后续施工,免去立柱垂直度调整,立柱可先将立柱顶板、底板加强筋与柱身焊接好,如图图(2-1-6)所示:要保证顶板、底板加强筋底部与柱身垂直、及底面平面度。安装可按照上述方法,立柱向下放时按照图示方向,立柱中心对准地板中心,轻微调整可用锤子敲打摆正,然后将立柱加强筋与地板完全焊接。

不可调节式立柱标高误差不易控制,正常安装标高误差约为+5mm。

可调节式立柱安装、焊接完成后检验若发现垂直度不对,可按照上述不可调节式立柱的方法进行调节。
立柱安装、焊接完成后检验若发现标高不对,如果低于设计标高尺寸,可在立柱顶板上增加一块相应厚度的垫板,如果高于设计标高尺寸,可将立柱本身取出相应的高度。
立柱安装完成后检查立柱安装实际间距是否符合图纸要求,若有误差需在立柱上做标记,以便于梁安装时做误差补偿。
2、 钢结构横梁安装
地面钢结构横梁一般采用立柱顶部支撑,安装较方便。横梁和立柱顶端连接一般采用焊接或夹板固定,钢结构承重量或跨度过大的场合,两种连接方式同时使用,压板固定具有可拆卸、稳定性好等优点。
地面钢结构立柱安装完成后,可安装钢结构横梁,横梁安装使用的大型设备有叉车、升降机等起吊设备,横梁安装如图图(2-2-1)所示:用叉车或升降机将横梁顶起超过立柱顶部高度,将横梁移动到立柱正上方,尽量两头对齐,向下放在立柱顶端。两根立柱旁分别用登高设备一个施工人员,待将横梁放稳后,两人用铁锤对横梁进行精确调整(铁锤敲击横梁两侧下部,横梁移动距离最有效且安全),使横梁中心与立柱中心对齐,横梁长度方向根据图纸居中摆放。精调完成后,横梁若是夹板固定方式,先安装夹板,将夹板置于横梁底边上方并对准立柱顶板螺栓孔,用螺栓将立柱顶板与夹板之间连接,加上平垫、弹垫并紧固、安装锁紧螺母;若是焊接连接方式,先将横梁与立柱底板之间点焊固定。
安装完成后检查横梁实际间距是否符合图纸要求,若不符需对横梁间距进行调整,夹板固定方式调制,是在立柱顶板上向需要调整方向进行扩孔;焊接连接方式调整,是将点焊部位焊点用打磨机打掉,将横梁向需要调整方向调整。待调整完成将螺栓拧紧并上锁紧螺母或将横梁与立柱顶板之间满焊。
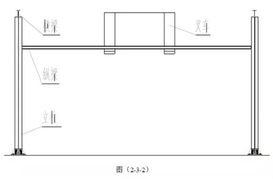
3、钢结构纵梁安装
如图(2-3-1)所示:钢结构纵梁安装方式有插接在横梁中间,插接梁是安装在两横梁垂直方向的梁,安装上平面与横梁一致,插接梁安装有直接焊接和螺栓连接两种,插接梁因与横梁的上平面一致,承重面大,易于平台、护栏安装。还有纵梁是安装在横梁底部用夹板螺栓固定,一般用于焊装焊机滑轨安装梁。
纵梁的安装上梁方式
如图(2-3-2)所示:使用叉车升降纵梁,叉车上梁具有速度快,位置调整方便等优点,但稳定性差,可用于叉车高度行程范围内插接梁,夹板固定梁。
如图(2-3-3)所示:使用升降机上梁,可使用多台升降机,具有稳定性强、可安装较高或较长的梁等优点,但梁上到升降机上需用叉车或人力搬运,施工速度慢。可用于升降机高度行程范围内插接梁,夹板固定梁。
如图(2-3-4)所示:使用自制扒杆、手拉葫芦上梁,可使用多台葫芦,具有稳定性强、可安装较高或较长的梁等优点,但手拉葫芦升降速度较慢,梁位置调整不便,一般使用于纵梁在横梁底部的夹板固定梁、长梁。
纵梁安装党法
直接焊接式插接梁:先在横梁上按图画出插接梁安装位置线,用割刀按图纸尺寸截取纵梁长度,两头用割刀将梁两头测出插头,上梁时考虑纵梁长度要比横梁内间距长,可将沿水平面倾斜一定的角度,使纵梁能够穿过。纵梁两头在横梁外侧各有一名施工人员,使用升降设备升到纵梁安装位置,待纵梁上升到与横梁上平面平齐,施工人员将纵梁移入横梁“工”字槽内,调整好位置焊接。
螺栓连接式插接梁:先在横梁上按图画出插接梁安装位置线,在横梁上焊接好连接板,若预制时焊好连接板,横梁安装时要以连接板位置为基准,保证纵梁直线度。用磁力钻固定在梁“工”字面按图钻孔,按上述方法将纵梁上升到与横梁上平面平齐,施工人员将纵梁移入连接板上,穿上螺栓,拧紧螺母、锁紧螺母。
夹板螺栓式纵梁:先在横梁上按图画出插接梁安装位置线,先要以纵梁侧边为基准画,否则上身到安装位置看不到线,按上述方法将纵梁上平面上升到与横梁下上平面平齐,施工人员调整好位置,放上夹板,穿上螺栓并拧上螺母、锁紧螺母。

在钢结构横梁上划线时要规划好两侧纵梁距横梁两头的距离。钢结构若是对称结构,要画出已立柱中心为边界横梁的纵向中心线,从横梁纵向中心线向两侧推算出纵梁安装中心线。若平台较宽(3根以上的纵梁),安装时纵梁与钢平台从一侧向另一侧连续安装。
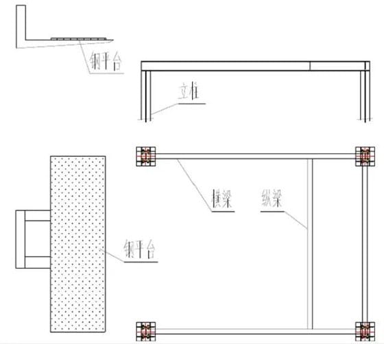
4、 钢结构平台安装
钢结构平台有模块式和整体式两种,模块式钢平台安装方式是在横梁、纵梁安装完成后,直接安装在钢结构上方或装在梁中间上平面齐平。整体式是钢结构横梁与平台之间直接连接整体安装。
上平刚平台的方式与上梁的方式相同,常用叉车和升降机进行升降。
模块式平台安装方法
如图(2-4-1)所示:模块式平台式放在横梁、纵梁上部,支撑全部在梁上,钢平台一定比横梁、纵梁之间的空隙大,模块式平台安装时升的高度要比梁的上平面要高,在行程允许情况下首先选用叉车升降方式,先把最边缘的两根纵梁装上,然后再用叉车上钢平台,钢平台两头用升降设备各有一名施工人员,辅助叉车将平台摆正,待钢平台放入安装位置抽出叉车后,施工人员用铁锤和撬棒按图纸对平台进行精调,钢平台装好两块后,按图将两块之间连接(U型螺栓或焊接)并与两连接。
如果是较高的平台,叉车行程不够的情况下,一跨纵梁可先全部装完后,钢平台用升降机升降,上升时使升降机一侧与边缘处的纵梁尽量靠近,待平台上升到与梁上平面齐平时(可略高)拉到钢平台上,调整好按图固定方式固定,先装靠近升降机的一块平台,然后逐步向里安装。
整体式是钢结构平台
整体式是钢结构平台一般在横梁、纵梁安装完成后,在两中间焊接一些加强筋梁。先实际将加强筋梁下完料后,用升降机将施工人员和加强筋梁一起升上去,按图将加强筋梁点焊分布好,进行满焊,然后在梁上铺钢板或钢板网。
5、钢结构楼梯、护栏安装
钢结构楼梯有斜梯或直梯两种,一般斜梯较重,直梯较轻。如图(2-5-1)所示:斜梯安装因自身较重,安装时可在平台上方处挂一台手拉葫芦,将梯子垂直与平台,放在对应平台安装位置的下方地面上,葫芦下端拴在梯子上部向上拉,待拉到安装位置调整好位置,上部与平台梁焊接,下部打膨胀螺栓固定。因直梯较轻,安装时可用人力将梯子拉上去,调整好位置,上部与平台梁焊接,下部打膨胀螺栓固定。
护栏安装,如图(2-5-2)所示:平台单跨安装完成后,即可安装护栏,因护栏垫片较轻,可先用叉车或升降机送到平台上,由施工人员搬运到安装位置,按图连接方式将护栏安装在钢平台边缘,焊接固定或螺栓固定。
综上所述:钢结构安装工艺(方法)最终目的是为了保证施工质量,是为了后期安装其他设备的基础。钢结构安装的每一步,都要考虑后期设备安装的尺寸。像钢结构,安装立柱是为横梁做支撑,安装横梁是为纵梁做支撑,安装横梁、纵梁是为钢平台、护栏作支撑,所以施工的每一步都要通过检验,检查是否符合设计要求,检查是否能够满足后期安装。如果施工的每一个步骤都能够检查,相信会减少后期返工,减短项目施工时间。此施工工艺还需持续不断的进行改善,不断完善,希望后期能做到节约施工、提供效率。


屋面彩钢板