1、工程概况
1.1、构件概况
文化馆主楼结构在局部区域中的负一层至四层(-6.000至+17.522)分别设置了钢骨柱(H500×250×20×30、H500×350×20×30二种型号);钢骨梁(H500×350×20×30)及钢骨桁架(H800×300×20×30(D)
构件平面布置详见下图示意:

附图:1.1-1钢骨柱、梁与钢桁架梁平面布置示意图
1.2、连接节点
分层钢骨柱拼接处采用焊接连接。
钢骨柱上的悬臂梁与其连接的钢骨梁之间采用栓焊混合连接。
栓接时采用10.9S级高强度螺栓连接副。
1.3、塔机参数
施工现场前期已安置QTZ40塔机三台其站位、工作半径与起重量参数详见下图:

附图:1.4现场塔机布置、工作半径与起重量示意图
2、施工难点与对策
2.1施工难点
(1)本工程主体结构的东、西两侧距作业点较远,北侧为场外道路并有一路高压供电线路因此该三方向在施工中均无法使用。
2)现场安置的三台塔机由于安置站位、工作幅度、起重量的限制,故不能满足各分层预制钢构件运输车辆的卸货及吊装作业。
3)三层楼面13-4/G-4至D-4轴位的钢骨桁架由于跨度:22.1m、高度:5.1m、总量重:22.723t、最大预制件重量3.766t、最大组拼件重量7.532t。现场塔机吊不动,而由于作业幅度近70m如采用超大型汽车吊进行吊装则费用太高。
2.2施工对策
(1)构件进场与卸货
根据现场土建施工进度,将钢柱、梁按各楼层的安装数量分批运至现场。
运输车辆进场后停于主体建筑的南侧道路,采用汽车吊进行卸货。
(2)钢骨柱、梁吊装
构件由卸货堆场至二次堆场的转运由汽车吊进行吊运作业。
13-4/G-4、D-4轴位;4-4/B-4、C-4轴位;6-4/B-4、C-4轴位的钢骨柱由塔机从二次堆场起吊至各安装点进行吊装作业
余钢骨柱、梁由汽车吊分别进行吊装作业。
(3)钢骨桁架吊装
钢桁架的斜腹梁在厂内预制成单件;上、下弦钢梁在厂内将其分别预制成两个分段,吊运至现场楼面再组拼成整根钢梁后再进行散拼法安装,以降低单件吊装量。既将上、下弦杆、腹杆分别进行吊装
组拼构件的地面卸货、二次吊运至三层楼面采用220t汽车吊;
组拼构件采用滚筒加电动卷扬机进行水平转运。
组拼构件的安装分别采用人字扒杆进行吊装作业(最大起升高度8.4m)。
3、施工部署
3.1组织管理
我方将指派具有类似工程施工经验的人员担任施工领班。
按总包规定的进度计划和安排无条件的组织安装施工,所有人员在工程进行过程中,随时接受业主、监理及总包的管理、检查与监督。
3.2安全文明施工
按文明施工的要求进行施工作业,安全帽、三级箱等管理按总包的规定要求执行。
3.3劳动力配置
为确保优质安全的完成本次吊装工程,将选派职业道德素质高,专业技术强,精干、高效的并具有多年施工经验的人员投入施工。
在施工过程中将根据施工进度及时调整作业人员。
各工种劳动力配置如下:
(1)安装工 5名
(2)起重工 4名
(3)电焊工 3名
(4)辅助工 2名
3.4技术准备
施工前组织各工种施工人员提前学习相关技术规范和南京地区的有关技术规定,熟悉图纸,明确施工内容、技术要求、质量标准、工期目标及安全规定。
工人进场后,对其进行有关法制、安全、防火和文明施工教育,学习有关施工规范、安全操作规程,并组织进行质量标准学习,进行技术作业交底。
3.5、施工机具部署
所选用的机械、设备,必须经过专门检修,确保在施工过程中能够正常运行。
本次吊装施工施工主要机具见下表:
4、吊装施工
4.1、构件参数
构件基本参数及吊装选用详见下表:
附表:4.1构件参数与吊装设备
4.2、安装流程
4.2.1、钢骨柱吊装流程
测放柱轴线、标高参照线→分别吊装各柱,用附加节点板临时连接并支撑→分别调校各柱垂直度、标高、间距→分别焊接各柱间的连接焊缝→焊缝进行无损检测→检验并交付土建施工
4.2.2、钢骨梁吊装流程
测放梁轴线、标高参照线→分别吊装各柱,用附加节点板临时连接并支撑→分别调校各柱垂直度、标高、间距→分别吊装各柱间的钢骨梁,在梁间腹板连接处用节点板进行连接经调校后紧固→分别焊接各柱间的连接焊缝→分别焊接各梁间的翼板连接焊缝→焊缝进行无损检测→检验并交付土建施工
4.2.3、钢骨桁架吊装流程
测放梁轴线、标高参照线→构件吊运至三层楼面→构件平移至组拼位置→下(上)弦分段钢梁组拼焊接→下弦钢桁架梁吊装、调校、紧固、焊接→上弦钢桁架梁吊装、调校、紧固、焊接→钢桁架梁腹杆吊装、调校、紧固、焊接→焊缝进行无损检测→检验并交付土建施工
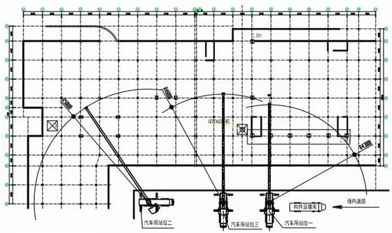
4.3、汽车吊站位与作业范围
4.3.1、站位
用于各层钢构件卸货及吊装的汽车吊选用详见本文:表4.2
当采用汽车吊进行卸货及吊装各部位的构件时其分别站位于(T-D2)轴外侧场地。
汽车吊站位详见下图:

附图:4.2汽车吊站位示意图
4.3.2、适用范围
(1)汽车吊站位一:适用于各层钢构件的卸货及13-4轴至18-4轴区域负一层至4层钢构件转运和吊装。
(2)汽车吊站位二:适用于4-4轴至9-4轴区域各层钢构件的转运和吊装。
(3)汽车吊站位三:13-4轴至18-4轴区域4层钢骨桁架构件的卸货、转运和吊装。
4.4、吊装方法
4.4.1、汽车吊吊装
采用汽车吊吊装其工作范围内相关楼层各区域的钢骨柱、梁时分别站位于位置一及位置二直接进行构件的定位吊装作业(除4.3.2条界定构件及13-4轴钢骨桁架梁)。
4.4.2、汽车吊与塔机相结合吊装
采用汽车吊与塔机相结合的吊装方式时先由汽车吊将构件吊运至塔机的工作范围内再由塔机进行构件的定位吊装作业(13-4/ G-4、D-4轴位;4-4/ B-4、C-4轴位;6-4/ B-4、C-4轴位构件)。
4.4.3、汽车吊与人字扒杆相结合吊装
当采用由220t汽车吊吊装钢骨桁架梁(13-4/D-4至G-4柱间)时其站位于位置三,首先将构件吊运至三层楼面(B-4、C-4轴与11-4、12-4轴区域)再由人工平移后采用人字扒杆进行钢骨桁架梁的组拼吊装。
4.5、人字扒杆吊装
4.5.1、吊具组件
4.5.2、吊装计算书
(1)计算简图
附图:4.5.2计算简图
(2)计算书
4.6、钢桁架梁吊装
4.6.1、吊装方法
13-4/D-4至G-4轴柱间钢骨桁架梁采用分件吊装法安装。
吊装顺序详见本文第4.2.3条文。
4.6.1、卸货与二次转运
先由汽车吊将二根上、下弦主梁的四个分段预制钢梁由地面吊运至三层楼面的C-4轴至D-4轴与11-4轴至12-4轴区域的二次停放点存放。
吊装作业前再由安置在该楼面的捲扬机和滚筒将其水平拖运至安装轴位下方分别进行组拼、焊接。
上、下弦主梁的四个分段预制钢梁采用立式组拼法进行组拼、焊接。
4.6.2、扒杆安置
扒杆构件分别由塔机吊运至三层楼面作业点后进行组装。
扒杆管脚中心位于钢骨桁架位置的跨度中部左侧1.5m处,扒杆管脚开度5m、扒杆顶部前倾变幅范围1.0至1.5m。
扒杆起竖在其前正后方分别设三根Φ20╳35m主缆风绳至扒杆顶部,正前方设二根Φ16次缆风绳,主、次缆风绳的下端分别用钢丝绳固定在砼柱下端。
为便于扒杆变幅分别在主、次缆风绳的下部连接变幅倒链。
扒杆的上端挂一起重量为10t的四门滑轮组,主吊钩钢丝绳由2t电动卷扬机经扒杆上端四门滑轮组与吊钩的四门滑轮组穿绕并固定。
电动卷扬机用钢丝绳固定在砼柱下端。
扒杆起搬后分别调整主、次缆风使其受力一致。
扒杆安置示意见下图:

图:4.6.2扒杆安置示意图
4.6.3、构件水平运输
钢骨桁架构件在三层楼面的水平运输采用一台牵引力1t的电动卷扬机为动力、以2t滑轮为变位固定点、以Φ50╳4mm钢管为托运滚筒分别进行水平运输。
4.7主要工序施工方法与技术措施
4.7.1、准备工作
(1)与落实汽车吊、塔机等吊装设备,检查作业面。
(2)吊装施工前,对结构的定位轴线、平面封闭角、柱位置轴线、标高参照点进行复测,合格后方能施工。
(3)检查钢构件上用于校正的轴线、标高参照线、点是非清晰、正确。
(4)检查吊索、吊具。
(5)钢骨柱起吊前搭好上柱顶的直爬梯,工作点搭设操作台并设置护栏。
4.7.2、吊点选择
(1)钢骨柱采用二点绑扎法,吊点设在钢骨柱上部吊耳处。
(2)钢骨梁采用二点绑扎法,吊点分别设在距全长中点两侧端各200mm位置处。
(3)当钢梁吊点采用钢丝绳捆扎法时应在梁体上相应位置设置护角器。
4.7.3、吊装注意事项
(1)钢构件吊装前其安装部位的基础、埋件、锚杆等必须检验合格,做了相应的标识,并办理基础中间交接手续。
(2)吊装时作业区内应无其他工种作业,并建立安全区。
(3)钢构件吊装时应有专人指挥,起吊索具和卸具必须有足够的安全系数,一般不小于5~6倍,严格遵守吊装的安全规定。
(4)钢构件吊装宜缓慢进行,就位时由操作人员扶正,用过渡螺栓穿过连接板将连接处临时
紧固后方可使起重机脱钩。
(5)吊装所用的自制索具应由吊装专业技术人员复核,必须符合吊装安全要求。
4.7.4钢骨柱调校
(1)在安装过程中各层钢骨柱标高和垂直度偏差的控制和调整,可用吊耳间的微型专用千斤顶进行调校控制,另外还可利用焊接收缩来调整垂直度偏差。
(2)垂直度偏差可采用用两台经纬仪或磁力线砣在钢柱轴线的相邻两侧同时对准钢骨柱两个侧面上、下端的中心标记测控。
(3)安装钢骨柱时,需要重复观测纠正其标高和垂偏值,钢骨柱吊装就位后,先作临时连接,上节钢骨柱柱底中心线对准下节柱的基准轴中心线,然后观测纠正其垂直偏差,再进行螺栓固定和定位焊接,间隙处尺寸调整值不大于5mm。
4.7.5、钢梁安装
(1)安装时将钢梁吊至所安装的轴线处与钢柱悬臂梁进行组对连接。
(2)吊装前设好安全绳,方便施工人员高空操作。钢梁吊装宜缓慢进行,吊升过钢柱顶后由操作人员扶正就位,用螺栓穿过连接板与节点临时固定,并进行校正
(3)钢梁校正后应及时进行高强螺栓紧固,在进行连接固定时,严禁将高强螺栓用锤打入孔中,应用过渡销先进行过渡,再安装高强螺栓。
4.7.6安装质量标准
钢骨柱安装主要检验项目允许偏差见附表7 .3 .7
5、工期目标与措施
5.1工期目标
(1)预定每四天完成一个楼层的钢骨柱、梁的吊装和焊接施工。
(2)预定10完成钢骨桁架的吊装和焊接施工。
5.2工期保证措施
(1)选派精干、高效的人员投入施工,并根据工程进展情况及时调整作业人员和作业时间。
(2)强化现场管理,及时协调组织工序中间交接,使现场施工组织、工序搭接最佳化,保证关键节点按期实现。
(3)加强质量管理,在质量创优的同进,以质优来避免工程的返工对施工工期的延误。
(4)加强施工安全管理,杜绝发生安全事故。
6、质量管理目标与措施
6.1质量目标
质量目标:合格
6.2保证措施
(1)必须按设计、施工图的要求和施工方案,并经业主、监理核定后方可进行施工。
(2)进场的构件须按图纸对其各项尺寸、焊缝等进行检查复核,变形的构件必须复矫或更换,
上述检查合格后方可使用。
(3)现场使用的工装、机具、检测仪器、量具须验证后方可使用。
(4)构件安装时应对其轴线位置、标高、垂直度、弯曲等参数用技术文件中规定的方法进行定位、测量、调校、连接和固定,其最终检测结果必须符合验收规范的要求。
(5)安装施工多在相对高空,须选派责任心强,技术精、身体好的人员操作。
6.3成品保护措施
(1)与土建施工单位共同参与进行成品、半成品保护,由业主或监理单位最终评价。
(2)指定专人进行保护专项管理,协调钢结构、及其它分包单位一致动作,有序地进行穿插施工。
(3)在构件堆放、吊装施工时对土建单位已完部分进行有效保护,确保整个工程的质量及工期。
(4)钢结构吊装时,各工种必须紧密配合,绝对禁止在吊装时与相关建筑发生碰撞,造成不必要的损失。
7、工程安全目标及措施
7.1工程安全目标
无重大伤亡事故。
7.2工程安全措施
(1)切实贯彻安全第一、预防为主的原则,认真执行国家、地方有关安全规定、安全操作规程,施工现场安全工作由项目经理主管,负责日常安全监督。
(2)在施工前要做好安全交底,明确安全责任制。
(3)对施工现场要采取相应的安全措施:洞孔封堵、高空设脚手架、设围栏、拉安全带和安全绳、摆放警示牌等。
(4)吊装作业要充分做好准备,有专人指挥操作,遵守吊运安全规定。
(5)施工现场焊接或切割等动火操作时,要事先注意周围上下环境有无危险性,以防失火。
(6)各工种人员要持证上岗,遵守本工种的安全操作规范,在安装中不要抱侥幸心理,而忽视安全规定。
(7)钢结构之间接头连接和安装就位等高空连接工作,应搭设稳固可靠的临时工作平台。
(8)起吊用工具和钢丝绳,必须有足够的安全系数,一般不得小于5~6倍。钢柱吊装就位后钢梁安装前,钢柱须设双向支撑固定。
(9)施工用电设施应专人维护,定期保养,严格遵循用电规程,保证安全用电,节约用电。
(10)严格遵守施工工地有关防火的规定,加强防火措施,杜绝火灾事故。
8.6与土建的施工配合措施
(1)密切与土建的工作联系,及时掌握工程进展情况配合土建各施工程序,为确保工程进度协调各方面的工作。
(2)安装每层钢柱时要及时与土建办好轴线、标高的交接手续。
(3)双方工序间的穿插施工交接做到相互交底,双方的技术人员、操作工人及时了解掌握。

屋面彩钢板