随着经济的飞速发展,科学技术的进步,施工工艺的创新,设计理念的进步,钢结构在城市景观中恰到好处的运用, 是实用功能与观赏性的良好结合; 亦是城市景观设计中技术与艺术的有机融合 。今天,京泊兴小编就带您走进钢结构景观工艺的世界~

钢材与钢材的固定做法
1.焊接
一种以加热、高温、高压的方式接合金属的制造工艺。
※园林景观施工中最常用的是气焊和电弧焊,
而电阻焊、感应焊、激光焊多用于精密的仪器制作。
※大型的钢结构可用螺栓固定,
较轻薄的饰面可直接用自攻螺钉和铆钉固定。
钢材与混凝土、砖砌筑砌筑固定做法
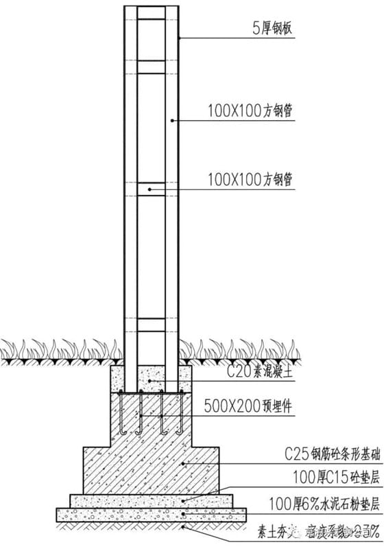
1.膨胀螺栓+钢构件、预埋件
※与木材的固定方式一样,根据受力的不同情况,
去选择不同的连接件。
※钢结构比木结构造型多变,也容易更换回收,
对应其风格类型上也应用的更多。
3.施工图案例
※以这面钢结构景观墙为例
相信模型能很直观的看清楚一个景墙的骨架分布和基础的做法,话说要是模型能做到这种地步,何愁不会画施工图啊。

龙骨的布置要在开洞面的角位上,有小于龙骨间距的开洞可用方钢管或角钢固定。
景墙受力和受风面较大的时候,可以使用加劲钢板加强钢结构的稳定性。

京泊兴观点
※钢结构的固定方式多为焊接
※根据受力情况去选用
※钢构件和预埋件加强稳定性
※遇受力大的结构使用加劲钢板增大拉力

小结
钢结构在景观中的应用越来越广泛,如小雕塑、护栏、亭子、景墙等。与其周围环境的配置都要遵循相互衬托、整体和谐、巧于立意,创造出具有可欣赏性的艺术景观。经过十几年的快速发展,我公司积累了丰富的专业经验,可承接各种类型、规模的风景园林工程和旅游规划工程项目等。期待与您交流合作,共谋发展!

屋面彩钢板