钢结构
1 钢结构设计制图分为钢结构设计图和钢结构施工详图两阶段。
2 钢结构设计图应由具有设计资质的设计单位完成,设计图的内容和深度应满足编制钢结构施工详图的要求;钢结构施工详图(即加工制作图)一般应由具有钢结构专项设计资质的加工制作单位完成,也可由具有该项资质的其他单位完成。
注:若设计合同未指明要求设计钢结构施工详图,则钢结构设计内容仅为钢结构设计图。
3 钢结构设计图
1)设计说明:设计依据、荷载资料、项目类别、工程概况、所用钢材牌号和质量等级(必要时提出物理、力学性能和化学成份要求)及连接件的型号、规格、焊缝质量等级、防腐及防火措施;
2)基础平面及详图应表达钢柱与下部混凝土构件的连结构造详图;
3)结构平面(包括各层楼面、屋面)布置图应注明定位关系、标高、构件(可布置单线绘制)的位置及编号、节点详图索引号等;必要时应绘制檩条、墙梁布置图和关键剖面图;空间网架应绘制上、下弦杆和关键剖面图;
4)构件与节点详图
a)简单的钢梁、柱可用统一详图和列表法表示,注明构年钢材牌号、尺寸、规格、加劲肋做法,连接节点详图,施工、安装要求。
b)格构式梁、柱、支撑应绘出平、剖面(必要时加立面)、与定位尺寸、总尺寸、分尺寸、分尺寸、注明单构件型号、规格,组装节点和其他构件连接详图。
4 钢结构施工详图
根据钢结构设计图编制组成结构构件的每个零件的放大图,标准细部尺寸、材质要求、加工精度、工艺流程要求、焊缝质量等级等,宜对零件进行编号;并考虑运输和安装能力确定构件的分段和拼装节点。
《常用用术语》
钢结构: 是由钢板、型钢、冷弯薄壁型钢等通过焊接或螺栓连接所组成的结构。
钢结构的特点: 轻质高强;塑性、韧性好;各向同性,性能稳定;可焊性;不易渗漏;耐热但不耐火;耐腐蚀性差;制造简便,施工周期短。
塑性: 承受静力荷载时,材料吸收变形能的能力。塑性好,会使结构一般情况下不会由于偶然超载而突然断裂,给人以安全保障。
结构设计的目的: 是保证所设计的结构和结构构件在施工和工作过程中能满足各种预定功能要求并具有适当的可靠性。
注明钢构件,我在算量的时候再讲什么是支承呀,什么是斜承呀什么的,哈哈
钢结构通常有框架、平面桁架、网架(壳)、索膜、轻钢、塔桅等结构形式。
其理论与技术大都成熟。亦有部分难题没有解决,或没有简单实用的设计方法,比如网壳的稳定等。
结构选型时,应考虑不同结构形式的特点。在工业厂房中,当有较大悬挂荷载或大范围移动荷载,就可考虑放弃门式刚架而采用网架。基本雪压大的地区,屋面曲线应有利于积雪滑落(切线50度外不需考虑雪载),如亚东水泥厂石灰石仓棚采用三心圆网壳,总雪载和坡屋面相比释放近一半。降雨量大的地区相似考虑。建筑允许时,在框架中布置支撑会比简单的节点刚接的框架有更好的经济性。而屋面覆盖跨度较大的建筑中,可选择构件受拉为主的悬索或索膜结构体系。高层钢结构设计中,常采用钢混凝土组合结构,在地震烈度高或很不规则的高层中,不应单纯为了经济去选择不利抗震的核心筒加外框的形式。宜选择周边巨型SRC柱,核心为支撑框架的结构体系。我国半数以上的此类高层为前者,对抗震不利。
结构的布置要根据体系特征,荷载分布情况及性质等综合考虑.一般的说要刚度均匀.力学模型清晰.尽可能限制大荷载或移动荷载的影响范围,使其以最直接的线路传递到基础. 柱间抗侧支撑的分布应均匀.其形心要尽量靠近侧向力(风、震)的作用线. 否则应考虑结构的扭转. 结构的抗侧应有多道防线. 比如有支撑框架结构,柱子至少应能单独承受1/4的总水平力.
框架结构的楼层平面次梁的布置,有时可以调整其荷载传递方向以满足不同的要求。通常为了减小截面沿短向布置次梁,但是这会使主梁截面加大,减少了楼层净高,顶层边柱也有时会吃不消,此时把次梁支撑在较短的主梁上可以牺牲次梁保住主梁和柱子.
构件设计首先是材料的选择.
比较常用的是Q235和Q345. 当强度起控制作用时,可选择Q345; 稳定控制时,宜使用Q235.通常主结构使用单一钢种以便于工程管理. 经济考虑,也可以选择不同强度钢材的焊接组合截面(翼缘Q345,腹板Q235). 另外,焊接结构宜选择Q235B或Q345B。
节点设计
1.焊接:对焊接焊缝的尺寸及形式等,规范有强制规定,应严格遵守. 焊条的选用应和被连接金属材质适应.E43对应Q235,E50对应Q345. Q235与Q345连接时,应该选择低强度的E43,而不是E50.
焊接设计中不得任意加大焊缝. 焊缝的重心应尽量与被连接构件重心接近.其他详细内容可查规范关于焊缝构造方面的规定.
2.栓接:
铆接形式,在建筑工程中,现已很少采用.
普通螺栓抗剪性能差, 可在次要结构部位使用.
高强螺栓,使用日益广泛.常用8.8s和10.9s两个强度等级.根据受力特点分承压型和摩擦型.两者计算方法不同. 高强螺栓最小规格M12. 常用M16~M30. 超大规格的螺栓性能不稳定,应慎重使用。
自攻螺丝用于板材与薄壁型钢间的次要连接. 在低层墙板式住宅中也常用于主结构的连接. 难以解决的是自攻过程中防腐层的破坏问题。
3.连接板: 需验算栓孔削弱处的净截面抗剪等. 连接板厚度可简单取为梁腹板厚度加4mm,则除短梁或有较大集中荷载的梁外,常不需验算抗剪。这个东东,其实就是两个对焊件上边加的哪个钢板(一般是)
4.梁腹板: 应验算栓孔处腹板的净截面抗剪.承压型高强螺栓连接还需验算孔壁局部承压.
5.节点设计必须考虑安装螺栓、现场焊接等的施工空间及构件吊装顺序等。构件运到现场无法安装是初学者长犯的错误。此外,还应尽可能使工人能方便的进行现场定位与临时固定。
6.节点设计还应考虑制造厂的工艺水平. 比如钢管连接节点的相贯线的切口可能需要数控机床等设备才能完成.
图纸编制
钢结构设计出图分设计图和施工详图两阶段,设计图由设计单位提供,施工详图通常由钢结构制造公司根据设计图编制,有时也会由设计单位代为编制。由于近年钢结构项目增多和设计院钢结构工程师缺乏的矛盾,有设计能力的钢结构公司参与设计图编制的情况也很普遍。
1.设计图:是提供制造厂编制施工详图的依据. 深度及内容应完整但不冗余. 在设计图中,对于设计依据、荷载资料(包括地震作用)、技术数据、材料选用及材质要求、设计要求(包括制造和安装、焊缝质量检验的等级、涂装及运输等)、结构布置、构件截面选用以及结构的主要节点构造等均应表示清楚,以利于施工详图的顺利编制,并能正确体现设计的意图。主要材料应列表表示。
2.施工详图:又称加工图或放样图等.深度须能满足车间直接制造加工.不完全相同的另构件单元须单独绘制表达,并应附有详尽的材料表.
梁柱铰接
梁柱刚接
铰接柱脚
梁梁续接
焊接符号
注:(1) 焊缝尺寸符号:a---坡口角度;b---根部间隙;p---钝边;H---坡口深度;K---焊角高度;l---焊缝长度。
(2) 焊缝横断面上的尺寸(如p、H、K等)标注在图形符号的上侧或下侧;在图形符号右侧如无任何标注,且又无任何说明时,表示焊缝是连续的。
(3) 当箭头指向在焊缝所在的一侧时,应将图形符号和尺寸标注在横线的上方,反之,应标注在横线的下方。
当焊缝分布不规则时,在标注焊缝代号的同时,宜在焊缝处加粗线(表示可见焊缝)或 线(表示不可见焊缝),如下图所示。
焊缝符号表示方法这里有个国标,大家下载下去温习一下,哈哈,不多讲了,没有意思,你看完后,就应该明白了,上面的接点什么意思,GB324-1988+焊缝符号表示方法 见附件
钢构件的重量计算及解释
钢结构的安装工艺不一样的,大家多看看方案就会了,对我们的报价是有影响,但对我的算量影响不大,除非他的方案要拆除。
钢结构的重量计算主要围绕着铁的密度 通常为7.86 就行了,注明一下钢与铁的质量通常按一样的.
铁的密度是7.8g/cm3 ---有的时候用7.85
哪么钢构件的重量其实就是一个体积与密度的,事,重量都以T表示,就是算方量的体积*7.86T/m3这就是重量(重量,现实中说重量以吨为基本的,力学上用牛)
在图纸上表示的时候,大部分的符号用汉语拼音的第一个字母表示这个构件件
看下面这个表格,是清单的项目,后面是并入的项目,对于其算量级意义,我们再在就讲讲哈 。
所包含计算构件指,在算出来后,与共并入清单报价.
钢结构是由钢板、角钢、槽钢、钢管和圆钢等热轧钢材或冷加工成型的薄壁型钢制造而成的结构。钢结构具有材料强度高、重量轻、安全可靠、制作简便等优点。在房屋建筑中,主要用于厂房、高层建筑和大跨度建筑。常见的钢结构构件有屋架、檩条梁、柱、支撑系统等。
构件代号
房屋结构的基本构件,如板、梁、柱等。种类繁多,布置复杂,为了图示简明扼要,并把构件区分清楚,便于施工、制表、查阅,把每类构件给予代号。
常用构件的代号
型钢
工字钢:
一、概述
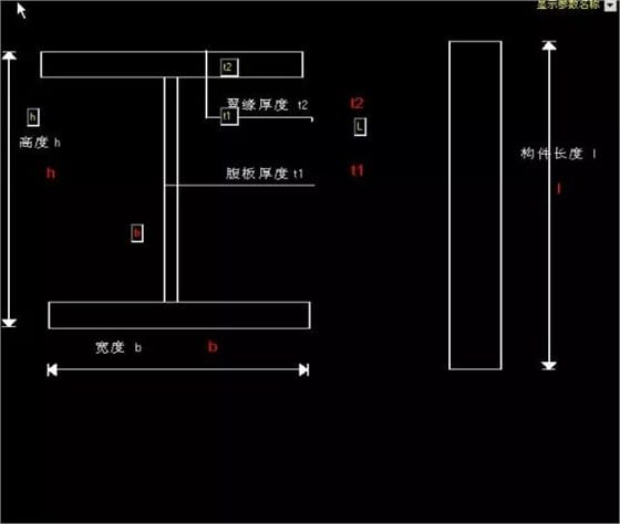
工字型钢也称钢梁,是型钢的一种,截面为工字形的长条钢材。其规格以腰高( h)*腿宽(b)*腰厚(d)的毫米数表示,如“工160*88*6”,即表示腰高为160毫米,腿宽为88毫米,腰厚为6毫米的工字钢。
二、主要用途
工字钢广泛用于各种建筑结构、桥梁、车辆、支架、机械等。
三、种类和规格
工字钢分普通工字钢和轻型工字钢,热轧普通工字钢的规格为10-63#。经供需双方协议供应的热轧普通工字钢规格为12-55#。 工字钢的规格也可用型号表示,型号表示腰高的厘米数,如工16#。腰高相同的工字钢,如有几种不同的腿宽和腰厚,需在型号右边加a b c 予以区别,如32a# 32b# 32c#等。
计算方式
只能查表或查工具,,注意,他与H型钢是不一样的,因为他是成品型,查出一米多少一乘就行了,对于打孔什么的就不扣了(哈,以后这句话我就不说了,和定额及清单上一样的)
H型钢
是一种截面面积分配更加优化、强重比更加合理的经济断面高效型材,因其断面与英文字母“H”相同而得名。H型钢具有抗弯能力强、施工简单、节约成本和结构重量轻等优点,已被广泛应。
热轧H型钢的表示方法:
H型钢分为宽翼缘H型钢(HK)、窄翼缘H型钢(HZ)和H型钢桩(HU)三类。
其表示方法为:高度H宽度B腹板厚度t1翼板厚度t2,如H型钢Q235、SS400 200200812表示为高200mm宽200mm腹板厚度8mm,翼板厚度12mm的宽翼缘H型钢,其牌号为Q235或SS400。
热轧H型钢的优点:
H型钢是一种新型经济建筑用钢。H型钢截面形状经济合理,力学性能好,轧制时截面上各点延伸较均匀、内应力小,与普通工字钢比较,具有截面模数大、重量轻、节省金属的优点,可使建筑结构减轻30-40%;又因其腿内外侧平行,腿端是直角,拼装组合成构件,可节约焊接、铆接工作量达25%。常用于要求承截能力大,截面稳定性好的大型建筑(如厂房、高层建筑等),以及桥梁、船舶、起重运输机械、设备基础、支架、基础桩等。
H型钢主要用于用于工业厂房、民用建筑、市政工程、石油平台、桥梁、平板车大梁、电气化铁路的电力支架、铁路沿线的钢结构桥梁等轻型、超轻型H型钢非常适用于集装箱、移动房屋、各类车库、箱式火车、电气支架、各类场馆、小别墅制造业。
热轧H型钢根据不同用途合理分配截面尺寸的高宽比,具有优良的力学性能和优越的使用性能。
焊接H型钢生产工艺流程
钢板--自动分条--组立--自动埋弧焊--探伤--翼缘矫正--腹板矫正--端面加工--喷砂除锈--喷漆。
全自动埋弧焊生产线自下料、组立、焊接全部由微机控制,保证生产的H型钢尺寸精度,焊缝质量均达到国家标准。
钢结构建筑,结构简洁、轻巧,扩大了建筑物的内部空间,节省钢材,安装周期短,屋面和墙面采用彩色压型钢板,使建筑物更具时代感。
H型钢重量 (2*b*t2+h*t1-2*t1*t2)*7.85*L/1000000
H型钢表面积 (4*b-2*t1+2*h)*L/1000
如下图
在从构成我们可以直接可以算出,就是钢板重量
在计算时,大部按标注的尺寸直接进行计算.
一、钢板(包括带钢)的分类:
1、按厚度分类:(1)薄板(2)中板(3)厚板(4)特厚板
2、按生产方法分类:(1)热轧钢板(2)冷轧钢板
3、按表面特征分类:(1)镀锌板(热镀锌板、电镀锌板)(2)镀锡板(3)复合钢板(4)彩色涂层钢板
4、按用途分类:(1)桥梁钢板(2)锅炉钢板(3)造船钢板(4)装甲钢板(5)汽车钢板(6) 屋面钢板(7)结构钢板(8)电工钢板(硅钢片)(9)弹簧钢板(10)其他
二、普通及机械结构用钢板中常见的日本牌号
1、日本钢材(JIS系列)的牌号中普通结构钢主要由三部分组成第一部分表示材质,如: S (Steel)表示钢, F(Ferrum)表示铁;第二部分表示不同的形状、种类、用途,如P(PLAte) 表示板,T(Tube)表示管,K(Kogu)表示工具;第三部分表示特征数字,一般为最低抗拉强度。 如: SS400——第一个S表示钢(Steel),第二个S表示“结构”(Structure),400为下限抗拉强度400MPA,整体表示抗拉强度为400MPa的普通结构钢。
2、SPHC——首位S为钢Steel的缩写,P为板PLate的缩写,H为热 Heat的缩写,C为商业Commercial的缩写,整体表示一般用热轧钢板及钢带。
3、SPHD——表示冲压用热轧钢板及钢带。
4、SPHE——表示深冲用热轧钢板及钢带。
5、SPCC——表示一般用冷轧碳素钢薄板及钢带,相当于中国Q195-215A牌号。其中第三个字母C为冷 Cold的缩写。需保证抗拉试验时,在牌号末尾加T为SPCCT。
6、SPCD——表示冲压用冷轧碳素钢薄板及钢带,相当于中国08AL(13237)优质碳素结构钢。
7、SPCE——表示深冲用冷轧碳素钢薄板及钢带,相当于中国08AL(5213)深冲钢。需保证非时 效性时,在牌号末尾加N为SPCEN。冷轧碳素钢薄板及钢带调质代号:退火状态为A,标准调质为S,1/8硬为8,1/4硬为4,1/2硬为2,硬为1。 表面加工代号:无光泽精轧为D,光亮精轧为B。 如SPCC-SD表示标准调质、无光泽精轧的一般用冷轧碳素薄板。再如SPCCT-SB表示标准调质、光 亮加工,要求保证机械性能的冷轧碳素薄板。
8、JIS机械结构用钢牌号表示方法为: S+含碳量+字母代号(C、CK),其中含碳量用中间值×100表示,字母C:表示碳 K:表示渗碳用钢。如碳结卷板S20C其含碳量为0.18-0.23%。
三、我国及日本硅钢片牌号表示方法
1、中国牌号表示方法:
(1)冷轧无取向硅钢带(片)表示方法:DW+铁损值(在频率为50HZ,波形为正弦的磁感峰值为1.5T的单位重量铁损值。)的 100倍+厚度值的100倍。 如DW470-50 表示铁损值为4.7w/kg,厚度为0.5mm的冷轧无取向硅钢,现新型号表示为50W470。
(2)冷轧取向硅钢带(片)表示方法:DQ+铁损值(在频率为50HZ,波形为正弦的磁感峰值为1.7T的单位重量铁损值。)的100倍+厚度值的100倍。有时铁损值后加G表示高磁感。 如DQ133-30表示铁损值为1.33,厚度为 0.3mm的冷轧取向硅钢带(片),现新型号表示为30Q133。
(3)热轧硅钢板热轧硅钢板用DR表示,按硅含量的多少分成低硅钢(含硅量≤2.8%)、高硅钢(含硅量> 2.8%)。 表示方法:DR+铁损值(用50HZ反复磁化和按正弦形变化的磁感应强度最大值为1.5T时 的单位重量铁损值)的100倍+厚度值的100倍。如DR510-50表示铁损值为5.1,厚度为0.5mm的热轧硅钢板。家用电器用热轧硅钢薄板的牌号用JDR+铁损值+厚度值来表示,如JDR540-50。
2、日本牌号表示方法:
(1)冷轧无取向硅钢带由公称厚度(扩大100倍的值)+代号A+铁损保证值(将频率50HZ,最大磁通密度为1.5T时的铁损值扩大100倍后的值)。 如50A470表示厚度为0.5mm,铁损保证值为≤ 4.7的冷轧无取向硅钢带。
(2)冷轧取向硅钢带由公称厚度(扩大100倍的值)+代号G:表示普通材料,P:表示高取向性 材料+铁损保证值(将频率50HZ,最大磁通密度为1.7T时的铁损值扩大100倍后的值)。如30G130 表示厚度为0.3mm,铁损保证值为≤1.3的冷轧取向硅钢带。
四、电镀锡板和热镀锌板:
1、电镀锡板
电镀锡薄钢板和钢带,也称马口铁,这种钢板(带)表面镀了锡,有很好的耐蚀性,且无毒,可用作罐头的包装材料,电缆内外护皮,仪表电讯零件,电筒等小五金。
钢板,因为在构件中大部的构件是钢板,无论是不是三角都要算成外接四边形.都成四边形了当然也好计算了,
钢板的重量如公式:A*B*t*7.85/1000000000
A B为钢板的长宽,t为钢板的厚度
这些公式的说明,全是毫米(因为图上的尺寸),但得的重量都 是按吨
构件的讲就到这里吧,说实话,基本上论坛的工具及资料就可以算出来了,不行的话还可以问的。我的步骤:
一、钢结构算量
1. 确定图纸
熟悉图纸,但有经验的人,有必要做这一过程的,只要大概看一下,算工程量的中间熟悉图纸,看一下图纸的构件对称性、重复性,以给后面的计算加快速度。
2. 开始计算准备
准备电脑、计算器(函数)、电脑内表格计算类软件(最好准备好可以编辑图形和公式的软件、五金手册、图集、规范,软件我用表格算量,并加上了自己自定义的钢结构公式。
在计算的时候,只对以上按清单要求计算量,对于刷油漆不增加工程,对于其它钢构配件(泛水、雨蓬、天沟)可以按到相应对应的板按照屋面编码010605001-002补充就可以单位可以按m(同类型),钢结构算量具体步骤如下:
?对整体式钢架进行分离式计算,在分离时一般把固定(焊接等方式)在主构件的型钢并入主构件,先对钢柱、钢梁进行按轴线型号进行分类计算,并把关联(与钢架相接)的连接板、结点板、檩托、墙托等相关联型钢类构件,一般型钢按图纸长度即可,我把型钢分为两种:一种一维型钢,如钢筋、角钢等,在手册上一般给出每米重量,对于一维构件主要是算构件的长度,也可以根据水平、垂;二种是二维型钢,如钢板,在手册上一般给出每平方米重量。
? 由下到上进行层次计算、按照清单(或定额)分类进行计算,计算地脚螺栓重量,分离式计算,把螺栓分成螺杆(按圆钢计算)、垫片(按钢板计算)、螺母(我个人认为不能计入工程量)合成重量并入清单工程量;支撑计算,支撑、斜撑、隅撑按实计算,连接板计算的时候可以并入主结构也可以并入支撑;檩条、墙檩、拉条、斜拉条套管按照分类及位置汇总,檩条搭接长度按图纸要求进行计算;
1. 注意事项
有时候图纸上标注不清楚(如有的连接板标注:t=6~10mm,也就是此连接件采用下脚料,可以采用6mm到10mm的钢板,在计算的时候一般就大不就小。在清单中不规则或多边形钢板以其外接矩形面积乘以厚度乘以单位理论质量计算,可以与自己定额工程量进行比较而使自己的价格综合人意。
计算的哪个表,我前面已经发过了
二、钢结构计价管理
发包方把建筑图纸及工程量清单交给施工单位,施工单位进行报价,选择相应合适的施工单位,建筑图纸内容只有土建项目(包括:桩基、承台基础、地梁、圈梁等钢筋砼结构及砖砌体、门窗工程、地面等一般装饰工程),清单项目列出土建项目及钢结构项目,土建清单按图纸进行计算而得,钢结构项目清单由于招标时没有图纸,按照门架结构进行概算指标分析在现实中一般钢结构量为每平方米大约20~30kg,但现在国外的钢结构厂家已经设计到量为20kg以下,把钢架、支撑、檩条、地脚螺栓含量分析含量按下表,根据清单量计算为28kg/m2。(我说的是门式钢架)
上面是我做的一个例子,算量的时候初步要知道销钉和螺栓、焊缝等一些附加产品产生的重量能不能计算在重量当中。
=======================================
获得更多分享方法:
可通过微信扫描以下二维码添加


屋面彩钢板