随着城市及城镇建设的快速进展的步伐,新型的支撑体系材料及施工工艺不断出现,使单体项目工程在工期、成本、安全文明等方面得到全面提升和降低成本。为了使各位同行充分了解新型轮扣式钢管脚手架与传统的扣件式脚手架的性价比,特做了如下比较说明:
1、加快工期
简单以100m2平方米房建工程为例,搭拆传统扣件式模板支撑架按每天8小时工作时间计算,需要1.5天也就是12小时(需要8个技术工4个普工)。新型轮扣式模板支撑架只需要0.5天时间也就是4小时(因为轮扣式模板支撑体系的搭设不用再向传统扣件式模板支撑架一样费时费力去拧紧扣件;只需要直接安装,对工人要求也不高,只需要1个技术工8个普工)。以现在比较流行的一梯四户住宅楼来计算:一个单元约320m2,传统一层所需要工期4.8天,新型的一层所需要工期3.2天,一层快1.6天。以一栋26层的住宅楼计算总工期加快41.6天。
2、一层成本节约
a:人工:传统扣件式支撑架按以上工期计算:(8技术工*250元/个工日+4杂工*130元/个工日)=2520.00元。新型轮扣式支撑架按以上工期计算:(1*250元/个工日+8*130元/个工日)*0.5=645.00元。
b:材料:1、传统扣件钢管:320m2*3.8m*0.008元/m(每天)=9.73元;扣件:320m2*3个*0.007元/个(每天)=6.72元。
2、新型轮扣式钢管
320m2*3m*0.02元/m(每天)=19.20元。二项比较:(9.73+6.72)-19.20=-2.75元。通过计算分析一层能够节约人工费1875.00元,材料费增加2.75元。
3、从隐形费用上来分析
传统脚手架扣件损失大;易丢失;维修量大,维修费用高;新型轮扣式钢管无扣件,基本无丢失,维修量也不大。按上分析,单独的从材料租赁上看轮扣架的费用是比传统的钢管脚手架高。但是从总占用工期上来分析费用,比如地下室使用传统的钢管脚手架一层占用时间为28-30天,新型轮扣钢管脚手架占用时间为23天。计算结果为(钢管脚手架)(9.73+6.72)*30天=493.5元。(轮扣钢管脚手架)19.20*23天=441.6元。结果是493.5-441.6=51.9元(以地下室320m2为例,每平方米节约租赁费0.16元)。再加人工费的节约1875.00÷320=5.86,综合分析:5.86+0.16=6.02,合计节约6.02/m2元
4、安全文明施工
传统钢管脚手架搭竖杆设间距设置需要用人为控制才能达到标准,轮扣式钢管脚手架竖杆设间距设置不需要人为的技术去控制它,因为它在厂家设计生产时就将横杆长度统一尺寸制作好了的,只需要按照空间尺寸排版好就能够达到横平竖直的标准。传统钢管脚手架的稳定性需要剪刀撑来控制,轮扣式钢管脚手架它就不需要剪刀撑了,因为它的轮盘是四个方向用水平横杆卡死了的。从现场文明施工及材料管理上来说,传统的扣件式钢管脚手架在材料存放上就需要较大的场地来存放,因为钢管尺寸长度规格较多,扣件数量大在存放上就需要投入较多人工来进行施工才能够达到现场文明施工需要。轮扣式钢管脚手架的竖、横杆尺寸都是按照工程空间尺寸设计生产好的,尺寸相对比较统一,在存放上人工投入较少,存放比较整齐,占地面积少。
多功能轮扣式脚手架施工介绍
一、轮扣式脚手架介绍
轮扣式脚手架全称为多功能轮扣式脚手架,它是由承插型盘扣式钢管支架衍生出来的一种新型建筑支撑系统。与盘扣式钢管支架相比具有承载力大,搭建速度快,稳定性强,易于管理等特点。
轮扣式脚手架在脚手架发展史上实现了三个第一:即“第一个”实现了钢管脚手架在结构上无任何专门的锁紧零件;“第一个”实现了在钢管脚手架上无任何活动零件;“第一个”实现了我国对整体新型钢管脚手架的自主知识产权。该产品已被普遍使用于路桥、市政工程中,在房建工程中正被广泛运用。
二、施工特点
1、具有可靠的双向自锁能力;
2、无任何活动零件;
3、运输、储存、搭设、拆除方便快捷;
4、受力性能合理;
5、可以自由调节;
6、产品标准化包装;
7、组装合理,它的安全性、稳定性好于碗扣式、优于门式脚手架。
三、架体组成
1、主要构配件:
(1)、立杆:杆上焊接有连接的轮盘和连接套管的竖向支
立体参数表
(2)、连接轮盘:焊接于立杆上可扣接4个方向扣接头的八边型孔板。

(3)、立杆连接套管:焊接于立杆一端,用于立杆竖向接长的专用外套管。

(4)、横杆:两端焊接有扣接头,且与立杆扣接的水平杆件。
横杆参数表
四、施工要点
1、前期应做好支撑体系的专项施工方案设计,搭设前应进行放线定位,使支撑体系横平竖直,以保证后期剪刀撑和整体连杆的设置,确保其整体稳定性和抗倾覆性。
2、轮扣式脚手架安装基础必须要夯实平整并采取混凝土硬化措施。
3、轮扣式脚手架宜使用于同一标高范围的梁板,而对于标高相差较大的梁板需进行详细的排版、设计。
4、架体搭设完成后要加设足够的剪刀撑,在顶托与架体横杆300-500mm之间的距离要增设足够的水平拉杆,使其整体稳定性得到可靠的保证。
5、目前我国建设部未有轮扣式脚手架行业标准和规范出台,不过在建设工地上已开始广泛使用,其现场施工可参照《建筑施工承插型盘扣式钢管支架安全技术规程》,施工计算可参照《建筑施工碗扣式脚手架安全技术规程》。
五、架体设计介绍
1、适用范围
1)轮扣式脚手架适用于非高大模板的模板支撑或标准层模板支撑架。
2)轮扣式脚手架基础应夯实平整并有混凝土硬化措施,且基础标高变化较少、较小。
3)轮扣式脚手架适用于结构形式较规整的结构。
2、立杆选择
1)轮扣式脚手架立杆采用Φ48×3.0mm钢管,受力计算时应根据现场实际情况进行调整,一般按Φ48×2.75mm进行计算。
2)立杆需尽量选用标准杆,因为非标准杆在接长时仅能统一放置于立杆顶部或底部,不能使相邻立杆接头错开,且设置于顶部时将存在立杆自由长度过长的情况。
3)因每根立杆均设置有立杆连接套管,连接套管将使单根立杆总长增加100mm,故选用立杆时必须考虑其增加长度,以避免立杆过长。
3、横杆选择
横杆均为标准杆件,其杆件长度符合300mm模数,故在进行架体立杆间距设计时应按照所提供横杆长度进行计算,故立杆间距设置无扣件式钢管脚手架灵活。
4、步距选择
架体步距的设置需与轮盘相对应,标准立杆的轮盘间距为600mm,故步距选择时需符合600模数。且最底部轮盘距立杆底端距离为350mm,故扫地杆实际设置于400mm处,此处与其他规范要求不对应,设计时需注意。
5、架体布置
架体布置时需进行排版设计,预先在电子图时行立杆定位。排版时先从建筑物一端开始,向另一端立杆定位,定位时按预定设计的立杆间距进行,局部不足排设间距的可减小一个横杆等级进行排设,且宜设置于墙柱边。
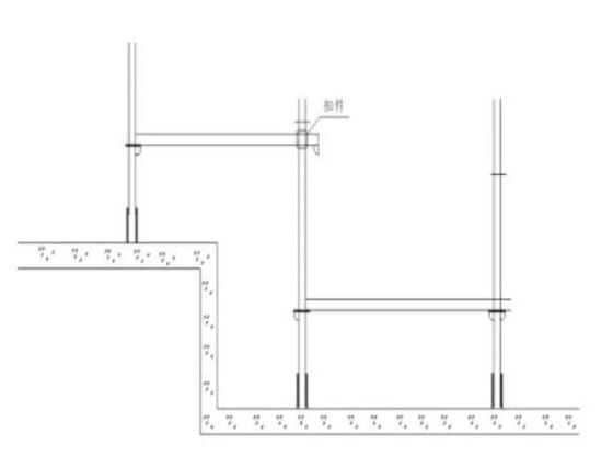
对于基础标高变化较大的部分,如卫生间降板、折板位置,可将此位置的架体单独搭设,再采用扣件将其连接成整体。
梁底宜采用锁钢管扣件的形式进行支设,可以保证梁板模板的正常搭设,并有利于排版布局。
梁模板支架示意图
六、施工介绍
1、施工工艺
测量放线,确定本层梁、板位置→定位立杆,并作出十字标记→竖立杆并搭设扫地杆及第一步横杆→搭设上部横杆及剪刀撑→锁梁底钢管→铺设梁底模板→板底模板铺设。
1)将楼层各构件位置的边线在地面上标出,以保证支架、模板施工过程中按设计尺寸进行施工。
2)按预先的支架设计位置在地面上将立杆位置标出,并做好标记,保证立杆排列整齐。
3)先竖立最角端的立杆,并逐步将周边立杆竖起,将扫地杆及第一步横杆搭设,保证已搭设架体稳固、不倾倒。
4)在立杆全部竖立完成后,进行上部立杆搭设,将全部横杆搭设完成,并预留出梁位。按预定架体设计要求搭设剪刀撑,剪刀撑必须按要求整体搭设。
5)搭设梁底纵向受力钢管,受力钢管需采用双扣件固定,钢管搭设时需进行标高复核以保证梁底模板为设计标高。
6)梁底模板铺设时,次楞木枋放置应平顺,且靠近节点位置需放置次楞。
7)板底模板铺设时,应先将顶部可调顶托调整至预定标高位置,并对其进行拉线找平,满足平整度要求后再铺设模板。
2、施工要求
1)所有模板支撑满堂脚手架搭设前,都要先熟悉方案要求,根据楼层高度,混凝土构件大小,确定立杆的间距要求,确定立杆的高度,拉线放出立杆的位置,注意横杆能尽量纵横贯通,平直。梁底的立杆与板底的立杆能通过横杆形成整体。
2)立杆基础应坚实,且底部需设置垫板。
3)立杆接头不宜设置在同一截面。
4)横杆接头需卡紧,并且保证端部与立杆接触紧密,在架体搭设完成后及混凝土浇筑过程中,需派人对横杆紧固情况进行检查。
5)立杆可调底托伸出长度不应大于300mm,立杆可调顶托伸出长度不宜超过300mm,立杆内长度不得小于150mm,且可调底托及顶托需满足《建筑施工承插型盘扣式钢管支架安全技术规程》中要求。
6)为满堂架体规划好验收通道,架体之间应形成人员能通行的通道,人员通道的第一步横杆可延后搭设。
3、现场情况处理
1)现象:立杆底部楼板存在降板,降板位置架体正常搭设时无法与周边架体连接形成整体。
处理:可在降板位置立杆下设置较厚的垫板将立杆底部调至同一标高,或按《建筑施工承插型盘扣式钢管支架安全技术规程》要求使用可调底座。
2)现象:卫生间沉箱位置或其他位置高差超过300mm,无法使用可调底托调整的,架体与整体分离。
处理:采用扣件将不能正常连接的横杆于立杆。
3)现象:当楼层层高受限时,模板支架立杆需采用单根非标准杆件,导致立杆顶部自由长度过长。
处理:在立杆顶部增加一个轮盘,增加轮盘位置可根据现场实际情况确定并保证轮盘致顶部高度小于允许自由长度,并且增加轮盘后的立杆以后仍能正常使用。
4、现场施工照片

屋面彩钢板